Если цена в объявлении изменится, мы сразу сообщим вам об этом на электронную почту.
Нажимая «Подписаться», вы соглашаетесь с правилами.
продам дом, Крылатая7 000 000 ₽
2 мар
Дата публикации объявления
Обн. вчера
Дата обновления объявления
2
(+1)
Количество просмотров (+ просмотры за сегодня)
87 500 ₽/м²
Чистая продажа
Термин "Чистая продажа" означает, что в квартире никто не прописан или
есть куда выписаться и вывезти вещи. Это лучший вариант для покупателя.
Вероятность срыва сделки минимальна.
Этажей1
Площадь участка5 соток
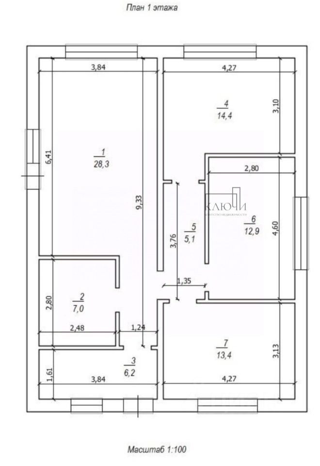
Общая площадь80 м2
ЭлектричествоЕсть
Газоснабжениецентральное
В продаже отдельно стоящий одноэтажный дом площадью 80 м. кв. на 5 сотках земли Подходит под льготную ипотеку 6%
О Локации: Дом расположен в южной части города Магнитогорска, п Надежда
Об объекте: Площадь 80 м. кв. 5 соток земли Предчистовая отделка (чистовая +1млн 100тыс)
Планировка дома включает в себя: гостиную + кухню с выходом на участок, 3 спальные комнаты, сан узел,
Можно в ипотеку (примерный расчёт): Стоимость 7 000 000 р. Первоначальный взнос 1400 000 р. Ставка - 6% Ежемесячный платеж 33 33р. Для сотрудников ПАО ''ММК'' действует компенсация платежа по процентам ипотеки, в размере 50%
Если вы хотите узнать подробности по лоту или рассмотреть другие варианты недвижимости в данной локации позвоните нам или напишите в сообщения эксперту и получите подборку Лотов..